矢田市営住宅




住宅の概要

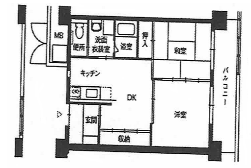
住宅の間取り図
1DK

2DK

3DK

住宅使用料
住宅使用料は、下記の各収入月額による(敷金は住宅使用料の3ケ月分)(補足)収入月額の計算のしかた
原則階層世帯
| 棟名・住宅タイプ | 収入月額 0円~104,000円 |
収入月額 104,001円~123,000円 |
収入月額 123,001円~139,000円 |
収入月額 139,001円~158,000円 |
|---|---|---|---|---|
| A棟・1DK | 19,500円 | 22,500円 | 25,800円 | 29,100円 |
| A棟・2DK | 24,100円 | 27,800円 | 31,800円 | 35,900円 |
| A棟・3DK | 30,400円 | 35,100円 | 40,100円 | 45,200円 |
| A棟・3DK(大) | 30,600円 | 35,300円 | 40,400円 | 45,500円 |
| B棟・1DK | 19,500円 | 22,500円 | 25,800円 | 29,100円 |
| B棟・2DK | 24,100円 | 27,800円 | 31,800円 | 35,900円 |
| B棟・3DK | 30,400円 | 35,100円 | 40,100円 | 45,200円 |
| B棟・3DK(大) | 30,600円 | 35,300円 | 40,400円 | 45,500円 |
裁量階層世帯
| 棟名・住宅タイプ | 収入月額 158,001円~186,000円 |
収入月額 186,001円~214,000円 |
|---|---|---|
| A棟・1DK | 33,200円 | 38,300円 |
| A棟・2DK | 41,000円 | 47,300円 |
| A棟・3DK | 51,700円 | 59,700円 |
| A棟・3DK(大) | 52,000円 | 60,000円 |
| B棟・1DK | 33,200円 | 38,300円 |
| B棟・2DK | 41,000円 | 47,300円 |
| B棟・3DK | 51,700円 | 59,700円 |
| B棟・3DK(大) | 52,000円 | 60,000円 |





閉じる
更新日:2025年05月07日