西干場市営住宅(1~5号棟)




住宅の概要

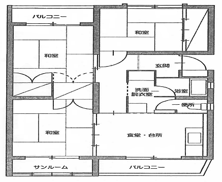
住宅間取り図
3DK(1~3号棟)

1DK(4号棟)

2DK(4号棟)

2LDK(4号棟)

2DK(5号棟)

住宅使用料
住宅使用料は、下記の各収入月額による(敷金は住宅使用料の3ケ月分)(補足)収入月額の計算のしかた
原則階層世帯
| 棟名・住宅タイプ |
収入月額 |
収入月額 104,001円~123,000円 |
収入月額 123,001円~139,000円 |
収入月額 139,001円~158,000円 |
|---|---|---|---|---|
| 1~3号棟・3DK | 18,700円 | 21,500円 | 24,600円 | 27,800円 |
| 1~3号棟・3DK | 18,900円 | 21,900円 | 25,000円 | 28,200円 |
| 1~3号棟・3DK | 19,500円 | 22,500円 | 25,700円 | 29,000円 |
| 4号棟・1DK | 13,800円 | 15,900円 | 18,200円 | 20,600円 |
| 4号棟・2DK | 18,100円 | 20,900円 | 24,000円 | 27,000円 |
| 4号棟・2LDK | 21,900円 | 25,300円 | 28,900円 | 32,600円 |
| 5号棟・2DK | 21,300円 | 24,600円 | 28,100円 | 31,700円 |
裁量階層世帯
| 棟名・住宅タイプ | 収入月額 158,001円~186,000円 |
収入月額 186,001円~214,000円 |
|---|---|---|
| 1~3号棟・3DK | 31,800円 | 36,700円 |
| 1~3号棟・3DK | 32,200円 | 37,200円 |
| 1~3号棟・3DK | 33,100円 | 38,200円 |
| 4号棟・1DK | 23,500円 | 27,200円 |
| 4号棟・2DK | 30,900円 | 35,700円 |
| 4号棟・2LDK | 37,300円 | 43,000円 |
| 5号棟・2DK | 36,300円 | 41,800円 |





閉じる
更新日:2025年05月07日